土地

笹塚3丁目売地

価格
9,340万円
交通
京王線 笹塚駅 まで 徒歩9分 京王線 幡ヶ谷駅 まで 徒歩13分
所在地
渋谷区笹塚3丁目 地図を見る
駅徒歩10分以内 上下水道完備

☆京王線 特急停車駅 「笹塚」駅まで徒歩9分
☆渋谷区立笹塚小学校まで徒歩7分
☆角地

藤原 和史

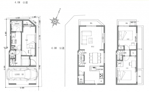
「笹塚」駅徒歩約9分、公道面角地、解放感のある物件です。
参考プランはLDK19.1帖、98.02平米の3LDK+駐車場
お好きなプランニングにて建築可能となっております。

土地面積 52.80㎡
( 15.97坪 )
その他私道面積
土地権利 所有権 地目 宅地
用途地域 1種住居 建ぺい率・容積率 60% : 160%
接道状況 北側 公道4.0m
東側 公道4.0m
建築条件 なし
設備 ガス:都市、上水道:公共、下水道:公共
備考 ※現況古家あり 解体予定
※上記土地面積にセットバック部分(2.12㎡)を含む
※司法書士は売主指定
※地盤調査の結果、地盤補強工事が必要になる場合には、買主負担となります。
※狭あい協議未了につき、面積に多少の誤差が生じる場合があります。
※準防火地域、第3種高度地区、隅切有、日影規制 4h-2.5/4m、航空法、景観法

【建物参考プラン】
 建物面積:98.02㎡
 建物構造:木造3階建
 建物参考価格:2,640万円
 ※建築審査機関の指導・構造計算などにより、参考プランが変わる可能性があります。
 ※パースは参考イメージ(オプション含む)につき、実際の建物と異なります。
現況 上物有 引渡時期 期日指定 2025年12月
小学校 笹塚 (489m) 中学校 笹塚 (244m)
取引態様 仲介 公開日 2025年11月10日
更新日 2025年11月24日 更新予定日 2025年12月08日
  • 消費税及び地方消費税の対象となる場合には税込価格で表示されます。
  • 図面と現況が異なる場合は現況を優先します。
  • 弊社ホームページ上の物件情報については、弊社の責任において管理しておりますが、物件状況確認・更新処理のタイムラグにより、ご覧頂いた時点で既に成約している場合がありますのでご容赦ください。
  • ご成約の際には、規定の仲介手数料及びそれに係る消費税を別途申し受けます。

MAP周辺地図

NEAR THE PROPERTIES近くの物件

LOGIN ログイン

SEARCH 物件検索

城南6区専門の未公開物件を含む不動産情報株式会社プランニングエステート

無料相談・お電話窓口

HPを見たと言って、お気軽にお問い合わせください!

03-5436-1888

営業時間 9:45-21:00 定休日:火曜日・水曜日

店舗情報

株式会社プランニングエステート

〒153-0063
東京都目黒区目黒1丁目6番17号
Daiwa目黒スクエア13階