土地 NEW!!

北沢1丁目売地

価格
14,000万円
交通
京王井の頭線 池ノ上駅 まで 徒歩4分 小田急小田原線 東北沢駅 まで 徒歩5分 京王井の頭線 下北沢駅 まで 徒歩9分
所在地
世田谷区北沢1丁目 地図を見る
駅徒歩10分以内 上下水道完備

☆最寄り駅まで徒歩4分
☆スーパーまで徒歩8分
☆現況更地

藤原 和史

「池ノ上」駅徒歩約4分、46.35坪、150平米以上建築可能な土地です。
建築条件はございませんので、LDK30帖4LDK+Pなど、お好みのプランやハウスメーカーにて建築可能となっております。

土地面積 153.23㎡
( 46.35坪 )
その他私道面積
土地権利 所有権 地目 宅地
用途地域 1種住居 建ぺい率・容積率 60% : 160%
接道状況 北西側 私道4.0m 間口約2.0m
建築条件 なし
設備 ガス:都市、上水道:公共、下水道:公共
備考 ※上記土地面積にセットバック部分(1.31㎡)含む
※上記接道状況幅員はセットバック後です。
※司法書士は売主指定とさせて頂きます。
※敷地内協定部分の白線内は駐車することが可能です。
※地盤改良、埋設管引込等が必要となる場合は、買主様のご負担とさせて頂きます。

※準防火地域、高度地区、景観法

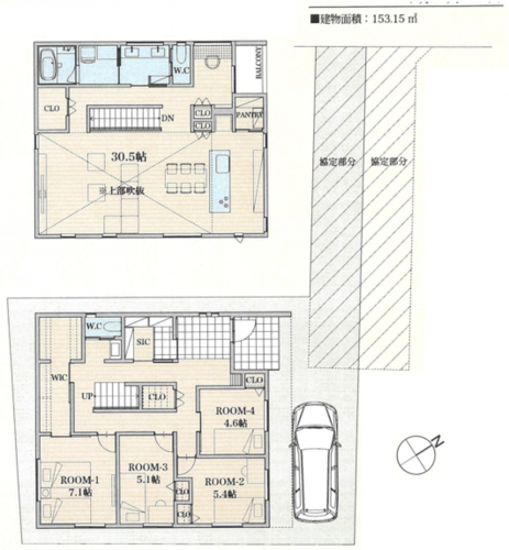
【建物参考プラン】
 建物面積:153.15㎡  建物構造:木造3階建
 建物参考価格:3,500万円
現況 更地 引渡時期 即時
小学校 池之上 (373m) 中学校 富士 (1040m)
取引態様 仲介 公開日 2025年11月14日
更新日 2025年11月16日 更新予定日 2025年11月30日
  • 消費税及び地方消費税の対象となる場合には税込価格で表示されます。
  • 図面と現況が異なる場合は現況を優先します。
  • 弊社ホームページ上の物件情報については、弊社の責任において管理しておりますが、物件状況確認・更新処理のタイムラグにより、ご覧頂いた時点で既に成約している場合がありますのでご容赦ください。
  • ご成約の際には、規定の仲介手数料及びそれに係る消費税を別途申し受けます。

MAP周辺地図

NEAR THE PROPERTIES近くの物件

LOGIN ログイン

SEARCH 物件検索

城南6区専門の未公開物件を含む不動産情報株式会社プランニングエステート

無料相談・お電話窓口

HPを見たと言って、お気軽にお問い合わせください!

03-5436-1888

営業時間 9:45-21:00 定休日:火曜日・水曜日

店舗情報

株式会社プランニングエステート

〒153-0063
東京都目黒区目黒1丁目6番17号
Daiwa目黒スクエア13階