土地 PRICE

祖師谷1丁目売地

価格
9,480万円
交通
小田急小田原線 祖師ヶ谷大蔵駅 まで 徒歩9分 小田急小田原線 千歳船橋駅 まで 徒歩15分
所在地
世田谷区祖師谷1丁目 地図を見る
駅徒歩10分以内 上下水道完備

☆現況更地
☆第1種低層住居専用地域内
☆建築条件付売地ではありません。
 お好きなハウスメーカーでご希望に沿った建物を建築可能です。

藤原 和史

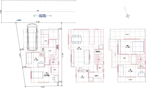
「祖師ヶ谷大蔵」駅徒歩約9分、25.97坪、整形地
参考プランはLDK25帖、128.14平米、3SLDK+P
お好きなプランニングにて建築可能な物件です。

土地面積 85.87㎡
( 25.97坪 )
その他私道面積 有 17.00㎡
土地権利 所有権 地目 宅地
用途地域 1種低層 建ぺい率・容積率 60% : 150%
接道状況 北側 私道4.0m 間口約8.3m
建築条件 なし
設備 ガス:都市、上水道:公共、下水道:公共
備考 ※私道負担部分(17㎡)=位置指定道路復元部分
※準防火地域、第1種高度地区、航空法、景観法

【建物プラン】
 建物面積:128.14㎡ 
 建物構造:木造3階建
 建物参考価格:3,300万円
現況 更地 引渡時期 即時
小学校 祖師谷 (900m) 中学校 千歳 (1970m)
取引態様 仲介 公開日 2025年12月01日
更新日 2026年02月23日 更新予定日 2026年03月09日
  • 消費税及び地方消費税の対象となる場合には税込価格で表示されます。
  • 図面と現況が異なる場合は現況を優先します。
  • 弊社ホームページ上の物件情報については、弊社の責任において管理しておりますが、物件状況確認・更新処理のタイムラグにより、ご覧頂いた時点で既に成約している場合がありますのでご容赦ください。
  • ご成約の際には、規定の仲介手数料及びそれに係る消費税を別途申し受けます。

MAP周辺地図

NEAR THE PROPERTIES近くの物件

LOGIN ログイン

SEARCH 物件検索

城南6区専門の未公開物件を含む不動産情報株式会社プランニングエステート

無料相談・お電話窓口

HPを見たと言って、お気軽にお問い合わせください!

03-5436-1888

営業時間 9:45-21:00 定休日:火曜日・水曜日

店舗情報

株式会社プランニングエステート

〒153-0063
東京都目黒区目黒1丁目6番17号
Daiwa目黒スクエア13階